• 0 (414) 347 72 38
  • info@karakopru.bel.tr
  • Çankaya Mah. Gaffar Okan Cad. Karaköprü
  • Belediyemiz
    • Meclis Üyeleri
    • Başkan Yardımcıları
    • Komisyonlar
    • Meclis Kararları
    • Faaliyet Planı
    • Performans Planı
    • Stratejik Plan
    • KVKK
  • Karaköprü
    • Nüfus Yapısı
    • Tarihi ve Bugünü
    • Coğrafyamız
    • Sosyal Tesislerimiz
    • Taziye Evlerimiz
  • Hizmetlerimiz
    • Lezzetler Sokağı
    • Meslek ve Hobi Kursları
    • Emekliler Yaşam Merkezi
    • Fidan Üretim Merkezi
    • Hayvan Bakım Evi
    • Kütüphaneler ve Okuma Evleri
    • Semt Pazarları
  • Kültür Sanat
    • Okuma Evlerimiz
    • Eğitimler
    • Müzelerimiz
    • Etkinlikler
  • İletişim
  • Anasayfa
  • Duyurular
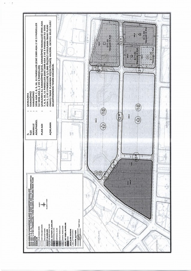
  • Uygulama İmar Planı Karaköprü (Doğukent) Mahallesi 5936/7-8-9-10-11 nolu Parseller ve Çevresi İlanı

Uygulama İmar Planı Karaköprü (Doğukent) Mahallesi 5936/7-8-9-10-11 nolu Parseller ve Çevresi İlanı


Oluşturulma Tarihi : 12.03.2026 08:25

Foto Galeri


Facial mask
Facial mask
Facial mask
Facial mask
Facial mask

Diğer İçerikler


MART 2026 MECLİS KARAR ÖZETLERİ
Uygulama İmar Planı Karaköprü (Batıkent) Mahallesi 2682 ve 2683 nolu Parseller ve Çevresi İlanı
Yusufkuyu Konaklamasız Orman Parkındaki Gelir Getirici Tesislerin İşletmeciliğinin İşletme Hakkının 20 (yirmi) Yıllığına Kiraya Verilmesi İşi İhalesi İlanı(OGM)
MART 2026 MECLİS İLANI
  • Belediyemiz
  • Karaköprü
  • Hizmetlerimiz
  • Kültür Sanat
  • Projelerimiz
  • Karamek

© 
Karaköprü Belediyesi - Bilgi İşlem